More than a house — a rebirth of Vilnius’ architectural memory
Robertas Karalius
Send MessageVilnius, Centras, J. Tumo-Vaižganto g.
This is more than a residence. It is a rebirth of Vilnius’ architectural heritage, brought back to life with an extraordinary love for detail, history, and aesthetic harmony.
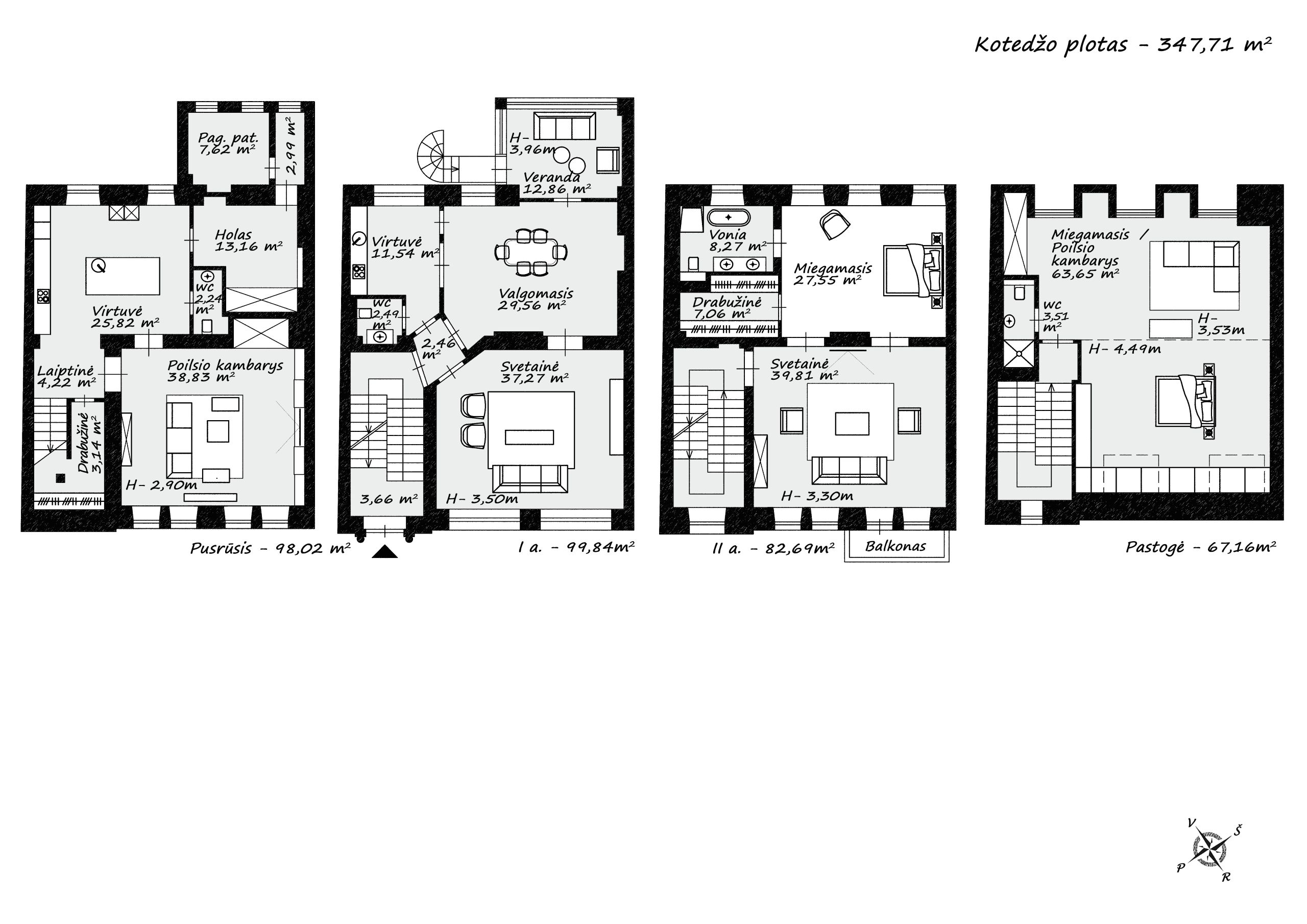
J. Tumo-Vaižganto Street 6 is one of the jewels of the famous Montvila (Kražių) Colony, designed around 1903–1911 as one of the city’s first villas with private entrances, gardens, and the refined aura of Vilnius’ early 20th-century intelligentsia. This home stands as a unique example of how historic architecture and contemporary comfort can blend into perfect harmony.
Once altered and divided during the Soviet era, the building has been meticulously restored to its authentic beauty — original ceiling cornices, window and door frames, parquet floors, marble sills, and staircase structures have all been revived. The restoration was carried out under the supervision of heritage experts, preserving every valuable fragment. It is a living example of how history can not only be preserved but reborn.
Inside unfolds a space where every room feels like an art gallery exhibit. Iconic design furniture, refined art pieces, and bespoke handcrafted finishes come together, each element carrying its own character. The interior concept was created to let the historic framework become a backdrop for a contemporary artistic dialogue, where light, form, and texture merge seamlessly.
Modern technologies are discreetly integrated, maintaining the authenticity of the atmosphere. These are homes that delight the eye and provide absolute comfort.
Located in the very heart of Vilnius, yet shielded from the bustle by the thoughtful layout of the Montvila Colony with its inner courtyards and greenery, the property offers peace, privacy, and timeless charm. Here, century-old façades and quiet courtyards evoke the city’s historic spirit — while just steps away lie Lukiškės Square, Gediminas Avenue, and the cultural pulse of the capital.
There has never been a property like this in Vilnius. It is a singular creation, uniting architectural heritage, iconic design, and the aesthetics of contemporary luxury.
Available for sale or long-term lease, it represents not just real estate, but an investment in history, culture, and a lifestyle that transcends time.
